1. 防止液體的逆流現象,保護泵設備等。
2. 由于是懸臂式止回閥,對流體產生阻力較小。
3. 全塑料材料制造,發揮酸堿等腐蝕性流體的強耐腐蝕性。
4. 不僅可從配管上拆卸閥體,而且,可打開閥帽,進行內部點檢維護。
?
?
| 材料 |
?????? 介質溫度℃ |
材料 |
介質溫度℃ |
| 氯化聚氯乙烯(PVC-C) |
-20℃~+95℃ |
聚氯乙烯(PVC-U) |
-5℃~+45℃ |
| 增強聚丙烯(FRPP) |
-20℃~+120℃ |
均聚聚丙烯(PPH) |
-20℃~+110℃ |
| 聚偏二氟乙烯(PVDF) |
40℃~+150℃ |
|
|
|
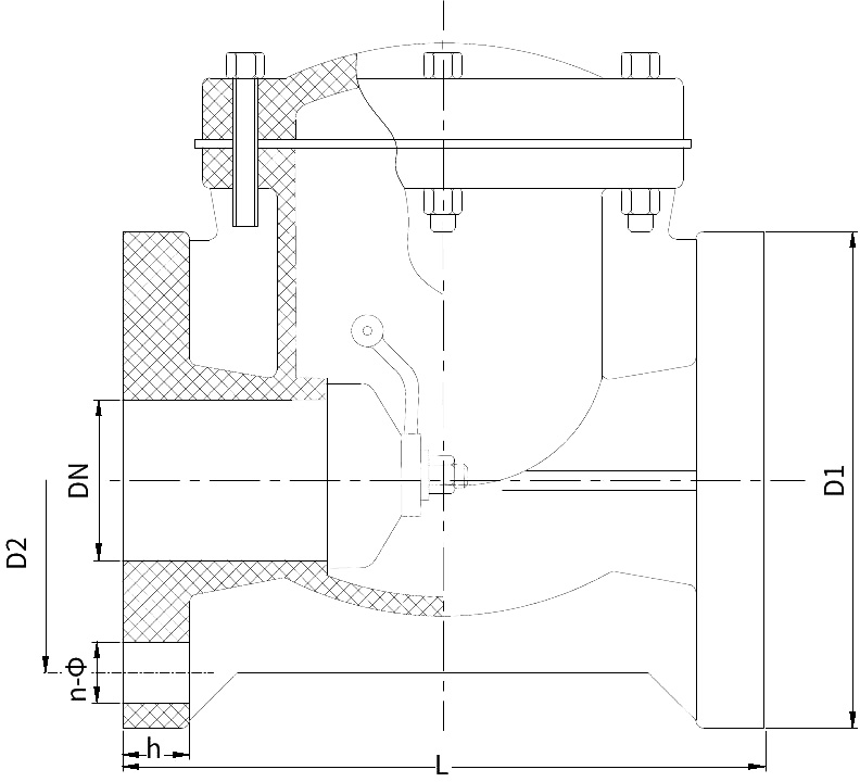
件號No.
|
名稱
|
材質
|
|
1
|
螺帽蓋
|
FRPP
|
|
2
|
閥蓋
|
FRPP,PVDF,PVC-C,PVC-U,PPH
|
|
3
|
揺桿
|
FRPP,PVDF,PVC-C,PVC-U,PPH
|
|
4
|
封蓋
|
FRPP,PVDF,PVC-C,PVC-U,PPH
|
|
5
|
密封圈
|
EPDM,FPM
|
|
6
|
密封螺母
|
FRPP,PVDF,PVC-C,PVC-U,PPH
|
|
7
|
連接桿
|
FRPP,PVDF,PVC-C,PVC-U,PPH
|
|
8
|
閥體
|
FRPP,PVDF,PVC-C,PVC-U,PPH
|
|
9
|
六角螺栓
|
鋼、不銹鋼
|
|
10
|
О型圏
|
EPDM,FPM
|
|
11
|
六角螺栓
|
FRPP,PVDF,PVC-C,PVC-U,PPH
|
|
12
|
墊片
|
鋼、不銹鋼
|
|
13
|
六角螺母
|
鋼、不銹鋼
|
?

旋啟式止回閥裝配明細圖
?
?
公稱直徑 DN(mm) |
D |
d |
L |
b |
n-Φ |
| GB |
JIS |
ANSI |
GB |
JIS |
ANSI |
| 15(1/2") |
115? |
65? |
70? |
|
160? |
18? |
4-Φ14 |
4-Φ15 |
|
| 20(3/4") |
115? |
75? |
75? |
69.9? |
160? |
18? |
4-Φ14 |
4-Φ15 |
4-Φ16 |
| 25(1") |
115? |
85? |
90? |
79.4? |
160? |
18? |
4-Φ18 |
4-Φ19 |
4-Φ16 |
| 32(11/4") |
145? |
100? |
100? |
|
170? |
20? |
4-Φ18 |
4-Φ19 |
|
| 40(11/2") |
145? |
110? |
105? |
98.4? |
170? |
20? |
4-18 |
4-Φ19 |
4-Φ16 |
| 50(2") |
160? |
125? |
120? |
120.7? |
200? |
21? |
4-Φ18 |
4-Φ19 |
4-Φ18 |
| 65(21/2") |
180? |
145? |
140? |
139.7? |
245? |
25? |
4-Φ18 |
4-Φ19 |
4-Φ18 |
| 80(3") |
195? |
160? |
150? |
152.4? |
265? |
26? |
8-Φ18 |
8-Φ19 |
4-Φ18 |
| 100(4") |
230? |
180? |
175? |
190.5? |
300? |
26? |
8-Φ18 |
8-Φ19 |
8-Φ18 |
| 125(5") |
250? |
210? |
210? |
215.9? |
350? |
30? |
8-Φ18 |
8-Φ23 |
8-Φ22 |
| 150(6") |
280? |
240? |
240? |
241.3? |
400? |
30? |
8-Φ22 |
8-Φ23 |
8-Φ22 |
| 200(8") |
340? |
295? |
290? |
298.5? |
500? |
30? |
8-P22 |
12-Φ23 |
8-Φ22 |
| 250(10") |
390? |
350? |
355? |
362? |
575? |
38? |
12-Φ22 |
12-Φ25 |
12-Φ26 |
| 300(12") |
445? |
400? |
400? |
|
575? |
38? |
12-p22 |
16-Φ25 |
|

?
?