| 材料 |
?????? 介質溫度℃ |
材料 |
介質溫度℃ |
| 氯化聚氯乙烯(PVC-C) |
-20℃~+95℃ |
聚氯乙烯(PVC-U) |
-5℃~+45℃ |
| 增強聚丙烯(FRPP) |
-20℃~+120℃ |
均聚聚丙烯(PPH) |
-20℃~+110℃ |
| 聚偏二氟乙烯(PVDF) |
40℃~+150℃ |
|
|
1.抗化學性優越:使用溫度范圍廣﹣20℃—95℃,介質中重離子含量達超純水標準;衛生性能符合國家衛生標準要求;
2.具有優良的強度、韌性以及耐化學腐蝕性能;
3.耐用:優異的耐老化和抗紫外線性能,使正常使用壽命比其他管道系統均有很大的延長;
4.低熱傳導性能:約為鋼材的1/200;阻燃性能為自熄性;
5.輕便:重量輕,相當于鋼管1/5,銅管的1/6;
6.阻力小,流率高:管壁平潔光滑,輸送流體時具有較小的摩擦阻力和附著力;
7.安裝簡易,成本低廉:可采用粘接、螺紋等方式連接,而簡便的是膠水連接。

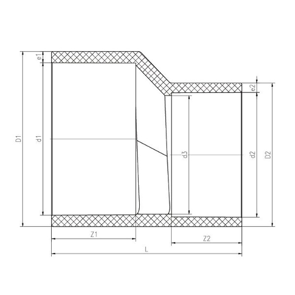
公稱直徑 DN |
D1 |
D2 |
d1 |
d2 |
d3 |
L |
Z1 |
Z2 |
e1 |
e2 |
| 50*25 |
75? |
40? |
63? |
32? |
27? |
92? |
38? |
22? |
6? |
4? |
| 50*40 |
75? |
61? |
63? |
50? |
46? |
87? |
38? |
31? |
6? |
5.5? |
| 80*40 |
104? |
61? |
90? |
50? |
46? |
122? |
51? |
31? |
7? |
5.5? |
| 80*50 |
104? |
75? |
90? |
63? |
60? |
117? |
51? |
38? |
7? |
6? |
| 100*50 |
127? |
75? |
110? |
63? |
57? |
150? |
61? |
38? |
8.5? |
6? |
| 100*80 |
127? |
104? |
110? |
90? |
86? |
138? |
61? |
51? |
8.5? |
7? |
| 150*80 |
184? |
104? |
160? |
90? |
79? |
213? |
86? |
51? |
12? |
7? |
| 150*100 |
184? |
127? |
160? |
110? |
102? |
202? |
86? |
61? |
12? |
8.5? |