| 材料 |
?????? 介質溫度℃ |
材料 |
介質溫度℃ |
| 氯化聚氯乙烯(PVC-C) |
-20℃~+95℃ |
聚氯乙烯(PVC-U) |
-5℃~+45℃ |
| 增強聚丙烯(FRPP) |
-20℃~+120℃ |
均聚聚丙烯(PPH) |
-20℃~+110℃ |
| 聚偏二氟乙烯(PVDF) |
40℃~+150℃ |
|
|
1.輕便:PVC-U 材料的比重只有鑄鐵的 1/10,運輸,安裝簡易,降低成本;
2.抗化學性優越:PVC-U 具有優良的抗酸堿性能,除接近飽和點強酸堿外;
3.耐用:抗候性優良,也不能被細菌及菌類所腐化;
4.不導電:PVC-U 材料不能導電,也不受電解,電流的腐蝕,應此無需二次加工。不能燃燒,也不助燃,沒有消防顧慮;
5.阻力小,流率高:內壁光滑,流體流動性損耗小,加以污垢不易附著在平滑管壁,保養較為簡易,保養費用較低;
6.安裝簡易,成本低廉:切割及聯接都很簡易,使用 PVC 膠水聯接實踐證明安全可靠,操作簡便,成本低廉。

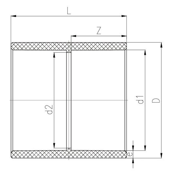
公稱直徑 DN |
D |
d1 |
d2 |
L |
Z |
e |
| 15 |
27 |
20 |
18 |
35 |
16 |
3.5 |
| 20 |
32 |
25 |
23 |
40 |
18.5 |
3.5 |
| 25 |
40 |
32 |
30 |
47 |
22 |
4 |
| 32 |
50 |
40 |
38 |
55 |
26 |
5 |
| 40 |
61 |
50 |
47 |
65 |
31 |
5.5 |
| 50 |
75 |
63 |
60 |
80 |
37.5 |
t6 |
| 65 |
88 |
75 |
72 |
92 |
44 |
6.5 |
| 80 |
104 |
90 |
86 |
107 |
51 |
7 |
| 100 |
127 |
110 |
105 |
127 |
61 |
8.5 |
| 125 |
161 |
140 |
134 |
158 |
76 |
10.5 |
| 150 |
184 |
160 |
154 |
180 |
86 |
12 |
| 200 |
249 |
225 |
219 |
247 |
118.5 |
12 |
| 250 |
309 |
280 |
272 |
303 |
146 |
14.5 |
| 300 |
346 |
315 |
306 |
338 |
163. 5 |
15.5 |
| 350 |
392 |
355 |
349 |
380 |
184 |
18.5 |
| 400 |
440 |
400 |
393 |
430 |
206 |
20 |
| 450 |
494 |
450 |
430 |
477 |
231 |
22 |
| 500 |
548 |
500 |
480 |
527 |
256 |
24 |
| 600 |
692 |
630 |
600 |
657 |
321 |
31 |
| 700 |
758 |
710 |
690 |
737 |
361 |
22.5 |
| 800 |
843 |
800 |
780 |
830 |
406 |
20 |